tlfn.......952 79 01 55 fax.......952 79 01 55 movil....630 90 54 34
|
vilcosur@gmail.com
Parcela
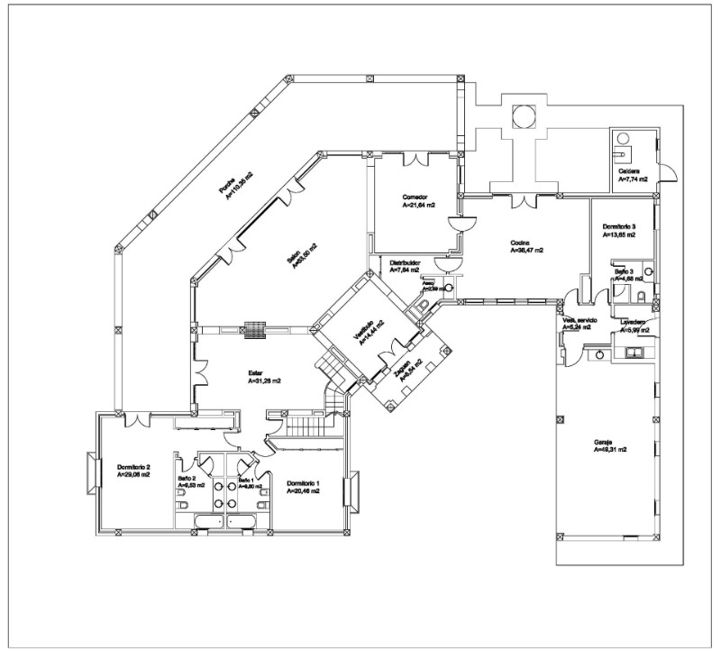
Planta Baja
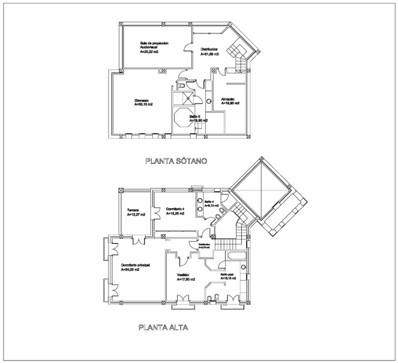
Planta Sotano y Planta Alta
Top